{{alert.message}}

hoekanker zonder ril sv

150X150X 60X 2.5MM

Artikelnummer: 00363247
EAN: 8714318040604

3-7 werkdagen
  • Afm. 150x150mm
  • Zonder ril
  • Sendzimir verzinkt
1 Stuk
153,00

134,64

incl. btw 162,91

Productomschrijving

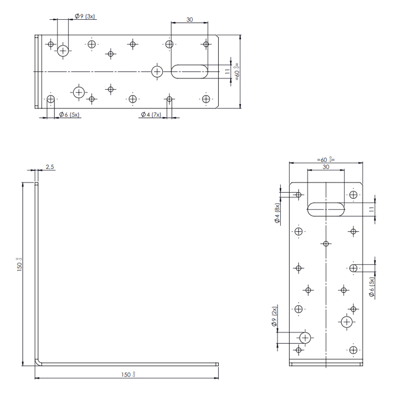
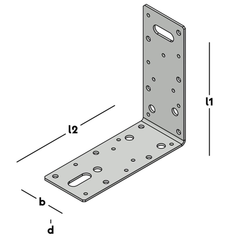
Hoekanker 150x150x60mm voor stijlmontage van kozijnen. Dit hoekanker wordt geproduceerd uit 60x2,5 mm sendzimir verzinkt staal. Het (slob)gatenpatroon van dit hoekanker is afgestemd op de gangbare bevestigingsmiddelen.

Technische gegevens

slobgaten2/30x11mm
gatenpatroon15/4-10/6-5/9mm
afmeting150x150mm
verpakkingsaantal50st
GTIN verpakking8714318106348
afmeting 260x2,5mm

Downloads

Gerelateerde producten